Аренда офисного помещения

Санкт-Петербург, Красногвардейский пер., д.23

79 494 ₽/мес

14 389 ₽ за м²/год

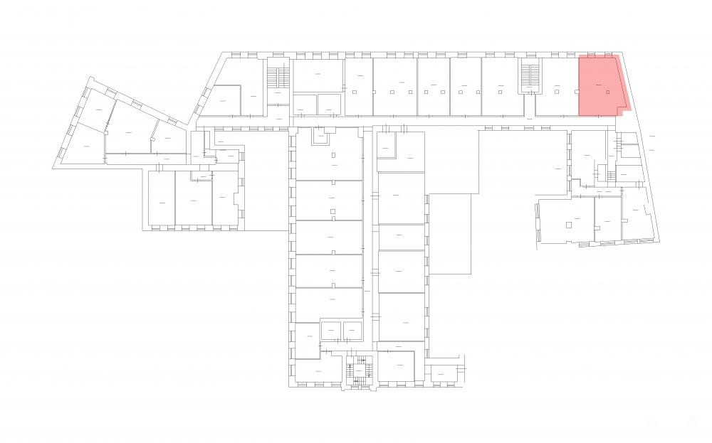
66 м²
Площадь
2
Этаж

Поделиться

Добавить в избранное

Сдается в аренду офис площадью 66, 3 кв. м, расположенный на Красногвардейском переулке, дом 23.

- Станция метро "Черная речка" находится в 15 минутах ходьбы, рядом имеются автобусные остановки.
- Удобство транспортной доступности обусловлено близостью центрального участка ЗСД, Выборгской набережной.

- На объекте осуществляется высокий контроль безопасности, установлена противопожарная сигнализация.
- По всему периметру ведется видеомониторинг, доступ производится по электронным пропускам.

- Отделка в помещении выполнена в светлых тонах, пол застелен линолеумом, на стенах окрашенные обои.
- В современные потолки "Армстронг" встроена система освещения, проведены электричество и отопление.
- Отдельно предоставляются услуги пользования высокоскоростным интернетом и цифровой телефонией.

- Для автомобилей сотрудников и гостей комплекса оборудована вместительная парковка.

Дата обновления: 31 октября 2025