Аренда офисного помещения

Санкт-Петербург, Конституции пл., д.2

30 814 ₽/мес

14 388 ₽ за м²/год

26 м²
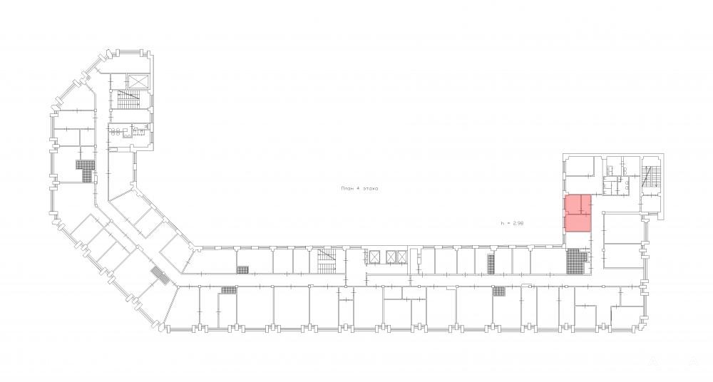
Площадь
4
Этаж

Поделиться

Добавить в избранное

Аренда помещения площадью 25, 7 кв. м под консалтинговые услуги.
4-й этаж, коридорно-кабинетная планировка.

Площадь состоит из нескольких помещений: можно выделить кабинет начальника, а также гардеробную.
Потолки 2, 98 м делают возможным установку высоких шкафов для хранения документов.

В помещениях уже выполнена отделка – не придётся тратиться на ремонт.
Надёжное инженерное оснащение помещения позволит сосредоточится на действительно важных задачах.
К услугам арендаторов: высокоскоростной интернет, цифровая телефония, пожарная сигнализация.

Действует контрольно-пропускная система, с помощью которой можно вести учёт рабочего времени сотрудников.
Проход осуществляется по электронным картам доступа.
Для вашей безопасности ведётся круглосуточная охрана и видеонаблюдение.

В здании бизнес-центра есть столовая и супермаркет "Лента".
На закрытой территории есть парковка.

Расположение: площадь Конституции, д. 2, 4 этаж, бизнес-центр "К-2".
Близко к территории бизнес-центра пролегают ЗСД, Ленинский проспект, Московский проспект и Пулковское шоссе.
В 15 минутах ходьбы находится станция метро "Московская".

Наша компания является собственником помещения – вам не придётся платить комиссию агентству!

Дата обновления: 17 ноября 2025