54 845 ₽/мес

11 988 ₽ за м²/год

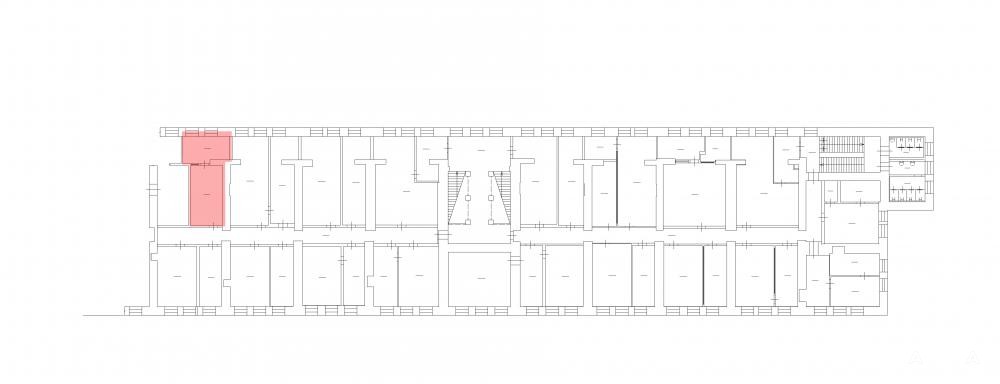
55 м²
Площадь
3
Этаж

Поделиться

Добавить в избранное

Аренда офиса площадью 54.9 кв. м в Калининском районе города.
Первая линия.
Адрес: ул. Комсомола, дом 1-3.

Третий этаж здания.
Кабинетная планировка.
Выполнена стандартная отделка помещения.

Услуги: цифровая телефония, интернет, пожарная сигнализация.
Инфраструктура: столовая, терминалы оплаты, парковка.

Действует пропускной режим.
Проход на территорию осуществляется по магнитным пропускам.

Дата обновления: 19 ноября 2025