39 530 ₽/мес

17 700 ₽ за м²/год

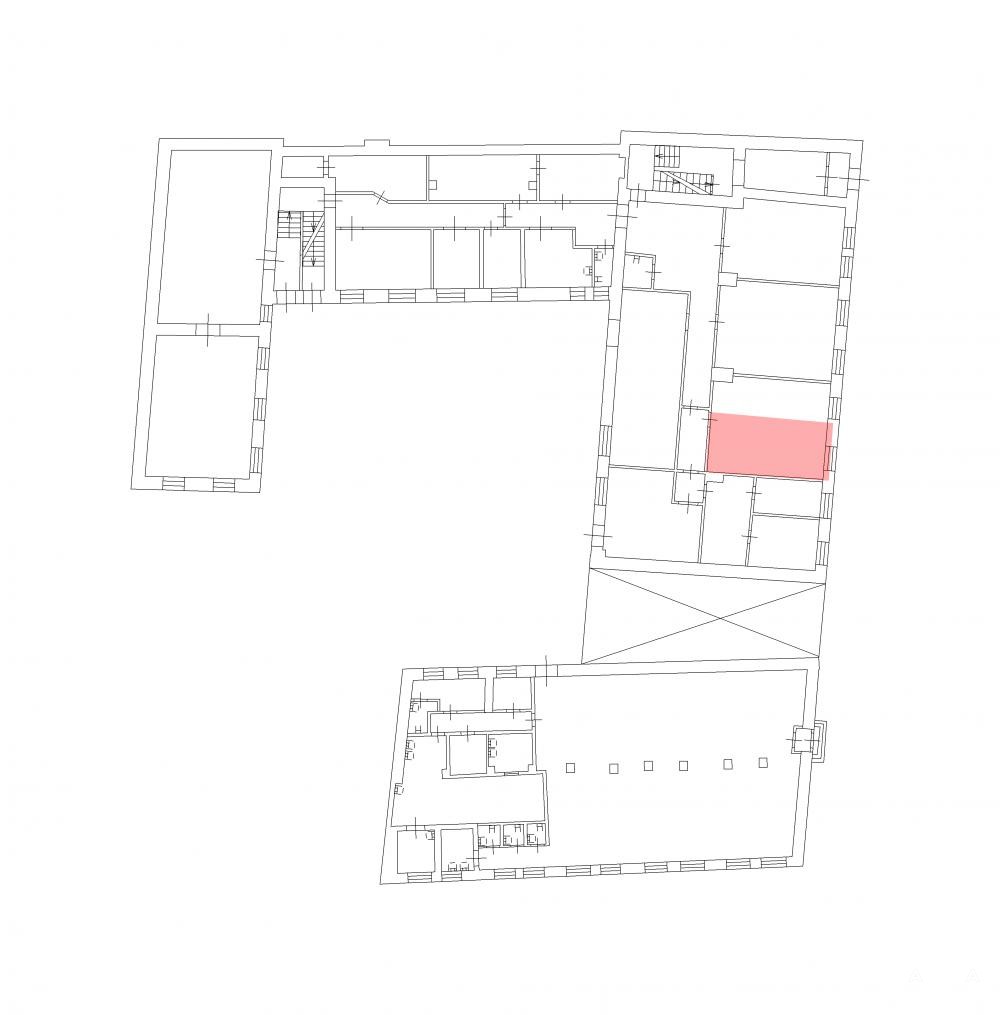
27 м²
Площадь
1
Этаж

Поделиться

Добавить в избранное

Сдаётся в аренду офис на 1-м этаже БЦ на Дегтярной улица, дом 5-7.

Площадь помещения - 26, 8 кв. м.
Вход в здание со стороны 3-й Советской.
Кабинетная планировка.

Качественная отделка: окрашенные обои, кафель на полу.
К услугам арендаторов: цифровая телефония, высокоскоростной  интернет, пожарная сигнализация.
Оснащение: отопление, освещение, пожарная сигнализация.

Ведётся круглосуточная охрана.

В стоимость аренды входит НДС.

Дата обновления: 11 декабря 2025