Продажа 1-комнатной квартиры
Ленинградская область, р-н Всеволожский, Сертолово, мкр Сертолово-1, ул Ветеранов, д9
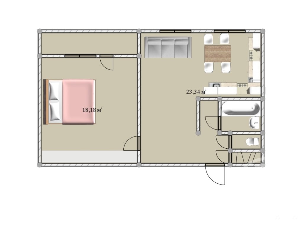
- 45 м²
- Площадь
- 18.1 м²
- Жилая площадь
- 13.4 м²
- Площадь кухни
- 10/10
- Этаж
7 299 000 ₽
161 126 ₽ за м²
ID объявления 12135340
Поделиться
Добавить в избранное
№341362 В продаже просторная светлая однокомнатная квартира.
Ленинградская область, г. Сертолово, ул. Ветеранов, д. 9
Удобная планировка данной квартиры позволяет сделать кухню-гостиную.
Дом построен в 1993 году. Гoд назaд произведен кaпитaльный рeмонт. Была применена гидро- и шумоизоляция стен и полов с применением керамзита, минеральной ваты и специального шумоизоляционного материала, а также утеплена лоджия. В квартире очень тепло и светло.
Во время ремонта на материалах не экономили. Вмонтированы утеплённые двухкамерные стеклопакеты с декоративными элекментами - шпросами. На всех окнах вертикальные жалюзи в светлых тонах. Установлены новые счётчики воды и электричества, а также фильтры на воду. Установлены дополнительные радиаторы отопления. Квартира расположена на последнем этаже, проблем с крышей нет. Недавно управляющая компания провела капитальный ремонт кровли. На лестничной площадке также сделан косметический ремонт, в парадной чисто и уютно. Соседи доброжелательные, тихие. Приятным бонусом к покупке недвижимости станет мебель и техника, а также две кладовые комнаты и два парковочных места.
Рассматриваем обмен на трехкомнатную квартиру в Сертолово.
Один взрослый собственник. Без обременений.
Звоните, оперативно организуем показ!
Дата обновления: 11 апреля 2026