Аренда помещения свободного назначения
Ленинградская область, р-н Всеволожский, Сертолово, мкр Сертолово-1, ул Сосновая, 4
50 000 ₽/мес
16 667 ₽ за м²/год
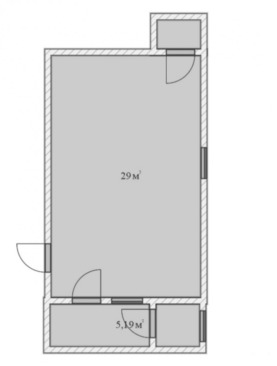
- 36 м²
- Площадь
- 2/2
- Этаж
№342123 ▌ ✨ Аренда помещения свободного назначения в самом сердце Сертолово ?
▌ Почему выбирают наше предложение?
- ⚡ Проходимость: Расположено в оживленном месте центра города, рядом находятся рынок, аптека и торговые точки.
- ?️ Косметический ремонт: Полностью готовое пространство для быстрого старта бизнеса.
- ?♂️ Удобства: Водопровод, электричество, канализация — всё необходимое уже подключено.
- ?️ Организация пространства: Удобное расположение на втором этаже отдельно стоящего здания.
- ? Парковка: Наличие удобных парковочных мест непосредственно перед входом.
? Идеальное решение для открытия магазина, мастерской, офиса, маркетплейса или другого востребованного направления бизнеса!
? Обращайтесь для просмотра и заключения договора аренды!
Контакты предоставляются по запросу.
Дата обновления: 20 ноября 2025