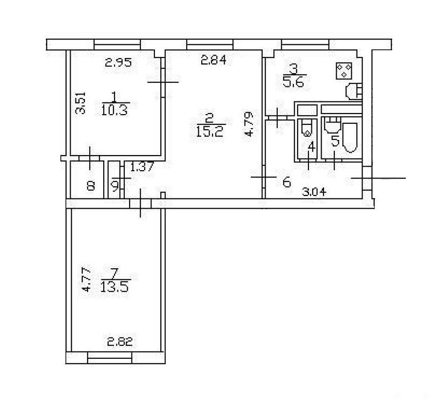
55 м²
Площадь
38 м²
Жилая площадь
6 м²
Площадь кухни
5/5
Этаж

5 550 000 ₽

101 835 ₽ за м²

ID объявления 12135207

Поделиться

Добавить в избранное

Продается двухсторонняя 3-х комнатная квартира в центре Колпино, прописка Санкт-Петербург! <br>Прямая продажа, быстрое освобождение. <br>Один взрослый собственник. <br>Общая площадь квартиры 54, 5 кв.м., сан.узел раздельный. <br>Квартира чистая, светлая, солнечная, можно въехать и жить. <br>Окна и вход – зелёный двор. <br>Преимущество последнего этажа – тихо над головой. <br>Протечек нет и никогда не было. <br>Хорошие соседи. <br>Развитая инфраструктура. Рядом автобусная остановка. <br> <br> <br>Арт. 120108293

Дата обновления: 18 октября 2025

Квартира От собственника