Продажа 1-комнатной квартиры
Санкт-Петербург, Парголово пос., Федора Абрамова ул., д 23, корпус 1, лит. А
Парнас, 15 мин
Проспект Просвещения, 25 мин
- 38 м²
 - Площадь
 
- 16.2 м²
 - Жилая площадь
 
- 11 м²
 - Площадь кухни
 
- 21/27
 - Этаж
 
8 200 000 ₽
213 542 ₽ за м²
ID объявления 12174080
Поделиться
Добавить в избранное
            №341642 Санкт-Петербург, п.Парголово, ул.Федора Абрамова, д.23, корп.1, лит.А.
Предлагается к продаже уютная однокомнатная квартира в ЖК `Северная долина`, расположенном по адресу: Санкт-Петербург, п. Парголово, ул. Федора Абрамова, д. 23, корп. 1, лит. А. Дом кирпично-монолитный, построен в 2015 году по индивидуальному проекту. Это первая продажа квартиры!
Светлая, просторная и уютная планировка. Квартира отличается рациональным использованием пространства.
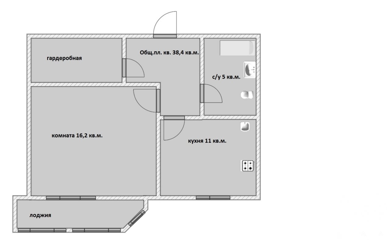
Общая площадь: 38, 4 кв.м.
Комната: 16, 2 кв.м.
Кухня: 11 кв.м., удобной квадратной формы.
Лоджия: 3, 5 кв.м. с выходом из комнаты.
Совмещенный санузел.
Вместительная гардеробная.
Развитая инфраструктура: Во дворе дома расположены новые современные детский сад и школа с бассейном. В шаговой доступности два торговых центра, супермаркеты, кафе, аптеки, спортивные клубы и МФЦ.
Медицинское обслуживание: Новая поликлиника находится в 10 минутах ходьбы.
Благоустройство: Благоустроенный двор с детскими площадками и зеленой зоной.
Природа: В пешей доступности расположен Шуваловский парк.
Транспортная доступность: Удобный выезд на КАД. До станции метро `Парнас` – 5 минут на общественном транспорте от остановки у дома или 15-20 минут пешком.
Информация о сделке:
Два взрослых собственника.
Материнский капитал не использовался.
Более пяти лет в собственности.
Встречная покупка.
Просмотры по предварительной договоренности.            
Дата обновления: 28 октября 2025