Продажа дома
Ленинградская область, Решетниково дер., Разъезжая ул., д 11
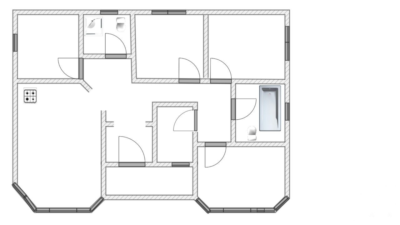
- 132 м²
- Площадь
- 46.7 м²
- Жилая площадь
- 20 м²
- Площадь кухни
- 1
- Этажность
- 20 сот
- Площадь участка
42 000 000 ₽
318 182 ₽ за м²
ID объявления 12289406
Поделиться
Добавить в избранное
№342455 (168) В тихом и уютном месте д. Решетниково Выборгского р-она Ленинградской обл. продается зимний жилой дом - 132, 2 кв. м. Дом из газобетона построен в 2020 году. Дом одноэтажный выполнен по проекту. Фундамент — монолитная плита, крыша - мягкая кровля катепал. Эл-во 30 кВт, отопление — центральный газ. Вода — артезианская скважина глубиной 160 м. Канализация биостанция Астра - 5. В доме располагается кухня — гостиная с эркерным остеклением и окнами в пол , хозяйственное помещение, просторный холл, гардеробная, 3 изолированные спальни и 2 с/у. Дорогие отделочные материалы, теплые полы на 1 этаже в прихожей и в обоих с/у. Высота потолка составляет 3, 1 м. Дом строился для себя из качественных материалов все сделано на совесть. В каждой комнате установлены кондиционеры. Видеонаблюдение. Зимняя иллюминация дома. Дом расположен на прекрасном участке, площадь которого составляет 20 соток ИЖС собственность. Участок огорожен, капитальный забор на ленте с автоматически открывающимися въездными воротами. Очень ухоженный, на нем произрастают сортовые растения, цветы, хвойники, плодовые деревья. Сделан водопад с альпийской горкой с регулировкой потока. Участок сухой ровный солнечный, выполнены дренажные работы. На участке зимняя беседка 20 кв. м. с камином с панорамным остеклением, где приятно устраивать чаепития и любоваться на шикарные закаты. Есть гараж, поделенный на 2 секции, одну из которых занимает кладовая — мастерская. Организована зона отдыха, где установлены мангал, тандыр, качели с навесом. Итальянская дачная мебель в подарок. Окружение очень достойное. Оз. Круглое с песчаным пляжем и местами для отдыха в пешей доступности. Прекрасно развита инфраструктура и прямое сообщение с городом. г. Зеленогорск и Финский залив 9 км. Идеальный вариант как для загородной жизни, так и для постоянного места жительства. Документы к продаже готовы. Более 5 лет владения. Приветствуем все виды оплаты.
Дата обновления: 6 декабря 2025