Аренда складского комплекса

Коммунар, Московское шоссе

3 930 920 ₽/мес

13 344 ₽ за м²/год

3 535 м²
Площадь
1
Этажность

Поделиться

Добавить в избранное

Пушкинский район, пос. Шушары, Московское шоссе, м. Купчино

Аренда складского комплекса класса "А" 3535 м2 с 4 доклевеллерами и пандусом

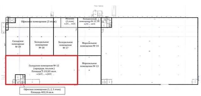
Сдается в аренду складской комплекс класса "А", общая площадь - 3535 м2, состоящего из сухого склада - 3132 м2 и АБК + офинсых помещений - 403 м?. Шаг колонн - 12х24. Рабочая высота потолков - 12, 5 м. Бетонный пол с антипылевым покрытием. Нагрузка на пол 6 т/м?. 4 доки, оборудованные доклевеллерами и докшелтерами. Один погрузочно-разгрузочный пандус. Все коммуникации: отопление (собственная газовая котельная), спринклерная система пожаротушения, электроэнергия - 100 кВт. Круглосуточная работа комплекса. Огороженная охраняемая территория, видеонаблюдение по периметру здания.

Цена 1112 руб. за кв. м. с НДС + КУ
телефон для связи +7-906-259-33-98
Консультант Андрей Салимов

П50

Код объекта: 19353

Дата обновления: 4 февраля 2025