Продажа 2х-комнатной квартиры
Ленинградская область, Кузьмоловский пос., Железнодорожная ул., д 5, лит. а
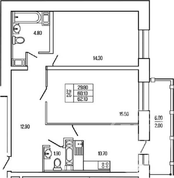
- 65 м²
- Площадь
- 29.8 м²
- Жилая площадь
- 10.7 м²
- Площадь кухни
- 4/19
- Этаж
11 549 000 ₽
179 055 ₽ за м²
ID объявления 12144453
Поделиться
Добавить в избранное
№341434 Продам прекрасную новую 2 комнатную квартиру во Всеволожском р-не Лен. области д. Кузьмолово. Общая площадь 62, 1 м 2, две жилые изолированные комнаты 14, 3 м2 и 15, 5 м2, кухня 10, 7 м2, просторный коридор 12.9 м2 , большая ванная 4, 8 м2, с/у 1, 9 м2, большой балкон с остеклением 6, 8 м2, высота потолка 2, 75 м, этаж 4/19
Преимущества квартиры и самого дома:
- новая чистовая отделка
- в санузлах кафельная плитка на полу и на стенах до потолка;
- акриловая ванна, раковина с подвесной тумбой;
- увеличенные оконные проемы, что дает дополнительный дневной свет;
- пол ламинат 33 класса;
- наземная парковка;
- в этом доме дополнительно можно приобрести кладовое помещение для хранения сезонных вещей;
Преимущества локации:
- вся развитая инфраструктура!!
- до ж/д станции и автобусной остановки пешком можно дойти за 5-7 мин;
- на электричке до метро Девяткино 10 минут;
- до центра СПб наземным транспортом 40 мин;
- рядом школа , детский сад;
- взрослая и детская поликлиники;
- Кузьмоловский дом культуры;
- отделение полиции;
- банки, аптеки, кафе, пекарни, магазины ( пятерочка и др.)
- самое главное преимущество- это в пешей доступности КУЗЬМОЛОВСКИЙ КАРЬЕР с ПЛЯЖЕМ и шикарными видами на огромный сосновый лесопарк ;
- так же очень большая зеленая зона лесопарка с прудом находится вокруг дома , где каждый день можно гулять с детьми, с питомцами , да и просто отдыхать на природе!
Достопримечательности в Кузьмолово:
-Пешеходный экологический маршрут Долина реки Охта;
-Пешеходный экологический маршрут Изумрудное озеро;
-Поляна сказок;
-Дом жестянщика и многое другое.
Все вышеперечисленные преимущества квартиры дают возможность комфортно проживать семьям с детьми, а также возможно покупка такой квартиры для старшего поколения. Либо, кто устал от городской суеты и хочет удаленности и замедления!
Квартиру можно купить по семейной ипотеке!
Звоните , записывайтесь на просмотр квартиры !!!
Дата обновления: 17 октября 2025