Продажа помещения свободного назначения

Ленинградская обл., Кузьмолово дер, Железнодорожная ул., 5

12 100 000 ₽

195 162 ₽ за м²

62 м²
Площадь
1/19
Этаж

Это объявление снято с публикации.

Если это ваше объявление, восстановите его в личном кабинете или подайте новое.

В ином случае, вы можете перейти на главную или поискать другие предложения.



В продаже помещение свободного назначения с офертой от арендатора.

Новый дом в шикарной локации.

Высокий автомобильный и пешеходный трафик

До ЖД станции «Кузьмолово» можно добраться за 5 минут пешком,

до метро Девяткино - 9 минут на электричке.

до метро «Гражданский проспект» — 15 минут на автомобиле, а до центра Санкт-Петербурга — 40 минут.

Рядом с домом - магазин Пятерочка большого формата с парковкой - работает уже 17 лет.

Надежный арендатор по выгодной ставке.

Поблизости расположен крупнейший в РФ медицинский центр федерального значения.

В 10 минутах на автомобиле находятся: круглогодичный курорт «Охта Парк», Зубровник,

Кавголовские озера и другие горнолыжные курорты.

Также поблизости расположено множество коттеджных поселков.

Приобретая данное помещение, Вы получаете рентабельный арендный бизнес

с отличной окупаемостью!

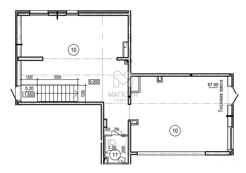
Планировка шикарная: квадратное помещение с возможностью организации склада с высоким потолком - 5 м

Без колонн!

Сопровождение по сдаче в аренду и, при необходимости, ведение арендного бизнеса далее.

Звоните, отвечу на все вопросы,

Договоримся о просмотре.

Агентство недвижимости Магазин Квартир является членом Ассоциации риэлторов.

Идентификатор объекта: KP11415.

Дата обновления: 3 апреля 2026