Аренда производственного помещения

Ленинградская область, Всеволожск, Южное ш, 134л, литера5

1 063 700 ₽/мес

6 600 ₽ за м²/год

1 934 м²
Площадь
1/1
Этаж

Поделиться

Добавить в избранное

Арт. 84482716. Предлагается в аренду производственно-складские помещения в г.Всеволожск

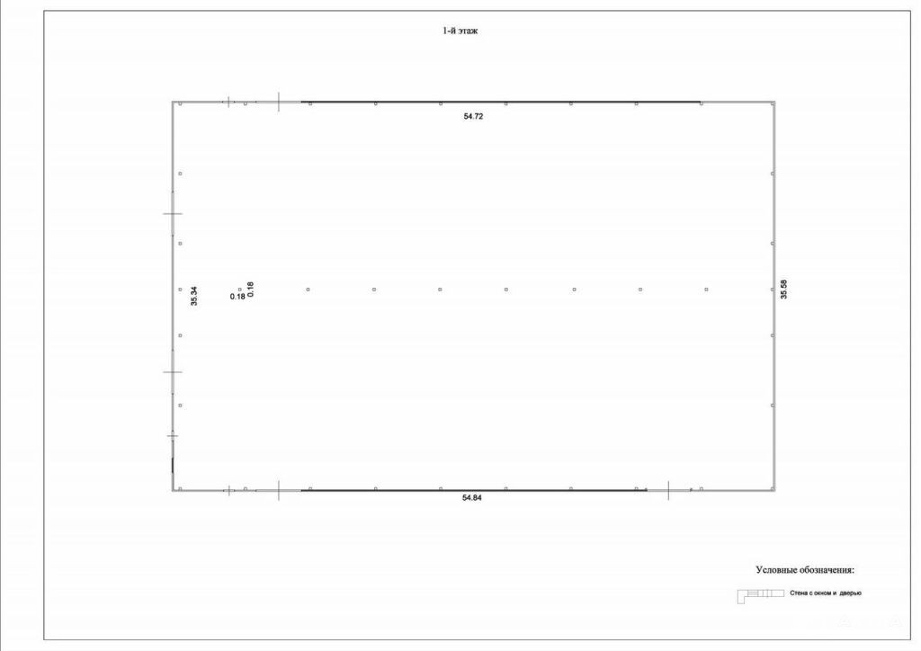
1-ый этаж; Общая площадь: 1934 м² (946, 9 м² + 987, 1 м²), возможна аренда части помещения.

Технические характеристики

- Кран-балка: 5 т (в одной части цеха)

- Высота потолков 8м

- Два отдельных въезда, ворота размерами 4×4, 5 м.

- Нагрузка на пол: 5 т/м².

- Электроснабжение: до 110 кВт (с возможностью увеличения до 150 кВт), 2-я категория надежности.

- Круглосуточная охрана, доступ 24/7

- Бесплатный въезд на территорию

- Дополнительно можно арендовать земельного участка под складирование и офисные помещения с возможностью регистрации юридического адреса.



Арендная ставка составляет 550 руб/мес за кв.м., включено отопление



___________________________________________________________________

Много других предложений, в том числе закрытых от рекламы.

Звоните в "FOG Group" и мы расскажем Вам о них.

"FOG Group" - индивидуальный подход к рынку индустриальной и коммерческой недвижимости.

Дата обновления: 16 апреля 2026

Помещение Производственно-складское