Продажа 3х-комнатной квартиры

73 м²
Площадь
42.8 м²
Жилая площадь
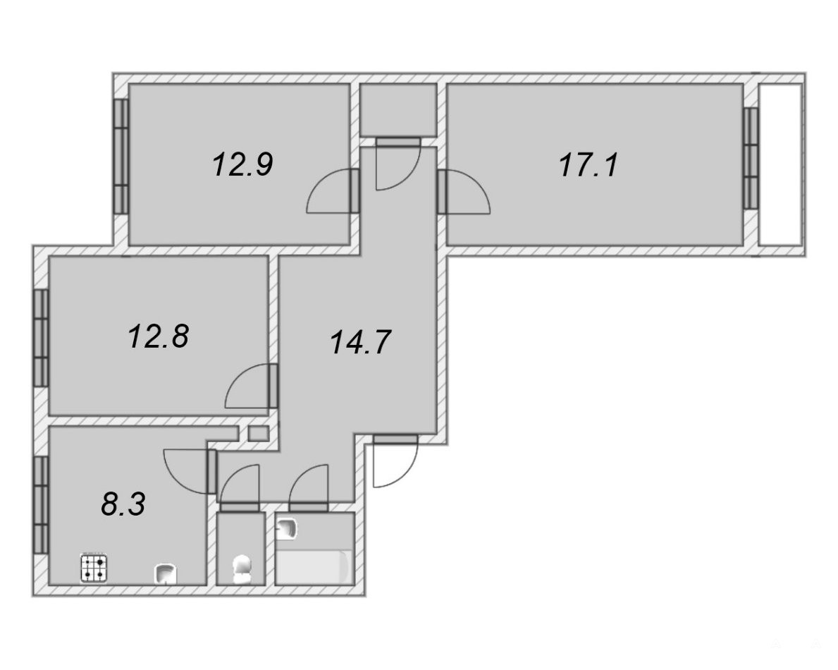
8.3 м²
Площадь кухни
5/5
Этаж

5 400 000 ₽

74 483 ₽ за м²

ID объявления 12696213

Поделиться

Добавить в избранное

№344746 192 Большая семейная квартира в экологичном районе у «Ласточки»
Продается просторная 3-комнатная квартира (72, 5 м²) в п. Победа. Идеальный вариант для тех, кто ищет тишину и природу, не теряя связи с Петербургом.
ПОЧЕМУ ЭТА КВАРТИРА ВАМ ПОНРАВИТСЯ:
Правильная планировка: Двусторонняя квартира — в ней всегда много света и легко проветривать. Все комнаты изолированы (17.1 + 12.9 + 12.8 м²).
Места для хранения: Огромная прихожая (почти 15 м²!) и 3 кладовых (включая одну большую на 2.1 м²). Можно организовать гардеробную и освободить комнаты от лишних шкафов.
Тепло и тишина: Квартира расположена в середине дома (не угловая), дом 1991 года постройки — надежная панель с хорошей теплоизоляцией.
Чистый холст: Квартира требует косметического ремонта — вы не переплачиваете за чужие обои и можете реализовать свой дизайн-проект.
ИНФРАСТРУКТУРА ДЛЯ ЖИЗНИ:
Все под рукой: В 5 минутах пешком — «Пятерочка», «Магнит», мини-Лента, школа, детский сад и медицинский кабинет.
Транспорт: До ж/д ст. Каннельярви 5 минут на автобусе. Оттуда на скоростной «Ласточке» вы в центре СПб (Финляндский вокзал) всего за 35–40 минут.
Природа: Поселок окружен сосновым лесом и озерами. Летом — грибы, ягоды и пляжный отдых в пешей доступности.
ЮРИДИЧЕСКИЕ ДЕТАЛИ:
3 взрослых собственника.
Полная готовность к сделке, подходит под ипотеку любой сложности.
Рассматриваем встречную покупку (2 к.кв. в этом же поселке на 1-2 этаже).
Адрес: Выборгский р-н, п. Победа, ул. Мира, 4.
Звоните прямо сейчас! Организуем просмотр по предварительной договоренности.

Дата обновления: 13 апреля 2026

Квартира От собственника Ипотека