Продажа многокомнатной квартиры
Санкт-Петербург, Сестрорецк г., Всеволода Боброва ул., д 24
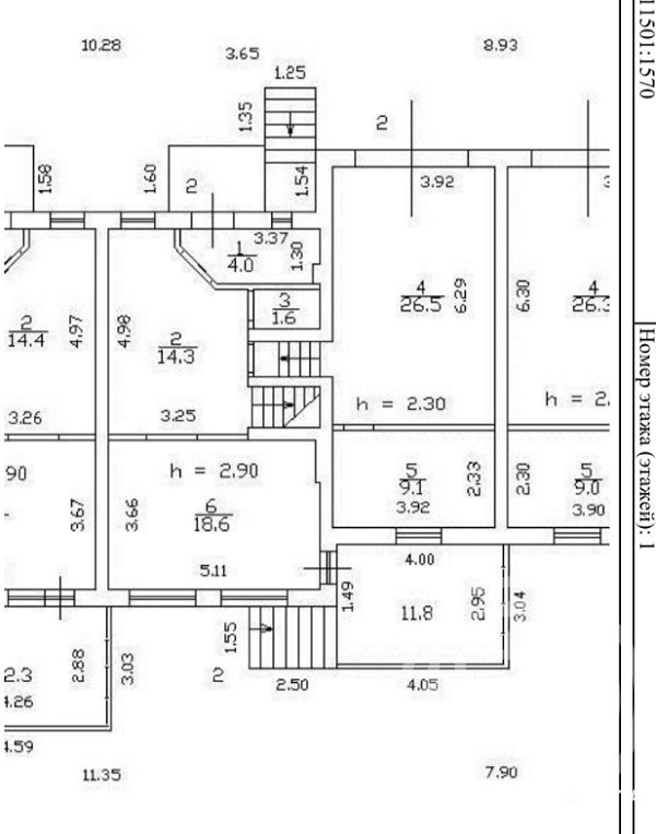
- 186 м²
- Площадь
- 130 м²
- Жилая площадь
- 25 м²
- Площадь кухни
- 2/3
- Этаж
28 800 000 ₽
154 673 ₽ за м²
ID объявления 12160005
Поделиться
Добавить в избранное
№341556 Санкт-Петербург, г.Сестрорецк ул.Всеволода Боброва, д.24
Предлагается 5-ти комнатная 3-уровневая квартира с отдельным входом( типа таунхауса) общей площадью 186, 5 кв.метров в самом экологиски чистом районе Санкт-Петербурга-Курортном.
Жилой комплекс `Рай в шалаше`
-`Рай в шалаше` - один из тех, что входят в крупномасштабный проект `Петербургское Садовое кольцо`.
- Этот жилой комплекс «Петербургское садовое кольцо» построен по австрийской технологии Vеlох, которая гарантирует высокое качество и долговечность.
- Стеновые конструкции и перекрытия “Vеlох” имеют отличные показатели по удержанию тепла, высокую огнестойкость и обладают повышенной пожарной безопасностью. В зимнее время дома сохраняют тепло, а летом прохладу.
- Благоустроенный двор оборудован видеонаблюдением, установлена детская площадка, имеется действующий подземный паркинг.
Инфраструктура
В районе есть все в пешей доступности:
- Государственная поликлиника (детская и взрослая)
- Государственный детский сад
- Магазины с фермерскими продуктами, кофейня, велодорожки, теннисный клуб, детская спорт.школа, SРА центр VОDА
Заказник Левашовский, озеро Разлив и пляж
Транспортная доступность
- КАД - 5 км.
- ЗСД - 13 км.
- Платформа Александровская 20 мин. пешком
- До станции метро `Беговая` 30 мин. на транспорте
Дом кoмфoрт клacсa c хopoшо сплaниpовaннoй придoмoвой тeppитоpиeй, 15мин. медленным шагом до заказника у оз.Разлив, 25мин. до пляжа на Финском заливе, прекрасные соседи, тишина и чистый воздух,
Квартира продается с торгов, аукцион. Возможно понижение цены.
Дата обновления: 23 октября 2025