Продажа 2х-комнатной квартиры

Санкт-Петербург, Сестрорецк г., Реки Сестры наб., д 7, лит. А

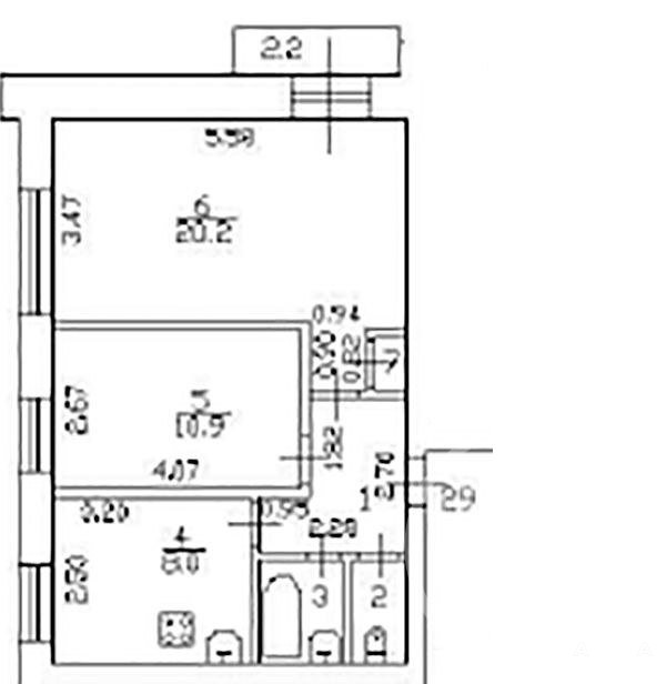
48 м²
Площадь
31.1 м²
Жилая площадь
8 м²
Площадь кухни
6/9
Этаж

10 300 000 ₽

215 032 ₽ за м²

ID объявления 12396171

Поделиться

Добавить в избранное

№342997 Вашему вниманию предлагается светлая двухкомнатная квартира на комфортном шестом этаже. Вся инфраструктура сложившаяся годами, находится в шаговой доступности.
Рядом располагаются две школы и два детских сада, крупные банки, магазины, аптеки, взрослая и детская поликлиники, больница, крытый каток.
Квартира требует ремонта, что позволит вам воплотить свои задумки и мечты об уютном гнёздышке.

Собственность более 5 лет, 3 взрослых собственника.
Готовы к выходу на сделку.
Показы в удобное для вас время!

Дата обновления: 27 января 2026

Квартира От собственника