Аренда торговой площади

Санкт-Петербург, Московская ул., д.25

62 874 ₽/мес

5 988 ₽ за м²/год

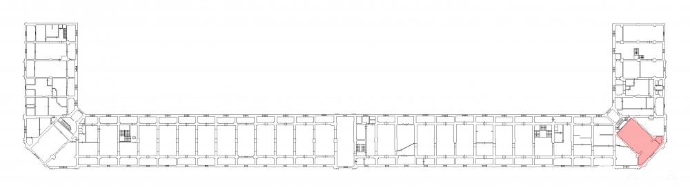
126 м²
Площадь
2
Этаж

Поделиться

Добавить в избранное

Аренда помещения под магазин на Московской ул., д. 25 (Пушкин).
Площадь помещения - 126 кв. м.

Помещение оснащено пожарной сигнализацией, отоплением, освещением.
Есть все необходимые коммуникации: высокоскоростной интернет и цифровая телефония.

Расположено на втором этаже ТК "Гостиный двор".
На объекте ведётся круглосуточная охрана.

Более подробную информацию можете узнать у менеджеров колл-центра.

Дата обновления: 23 декабря 2025