Продажа части дома
Санкт-Петербург, Петергоф г., Скороходовская ул., д 13
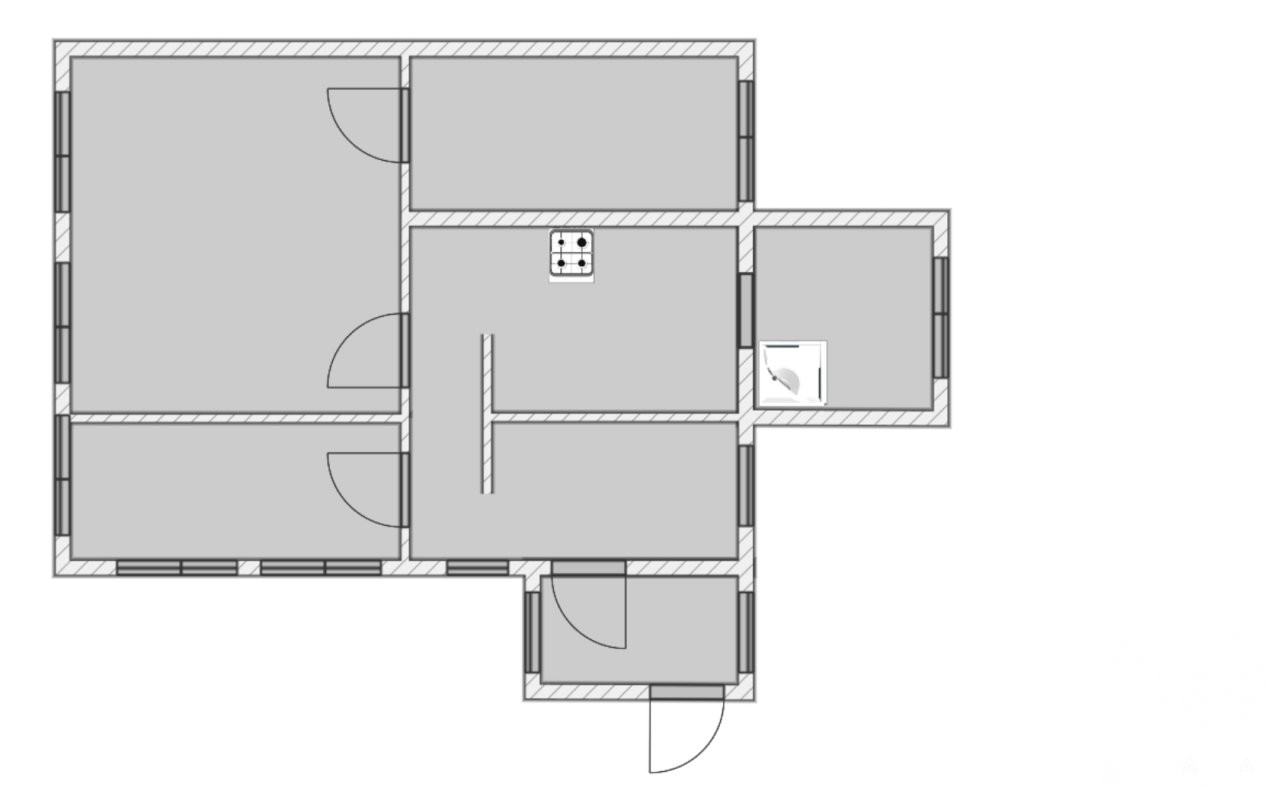
- 74 м²
- Площадь
- 64 м²
- Жилая площадь
- 6.5 м²
- Площадь кухни
- 2
- Этажность
- 6 сот
- Площадь участка
5 500 000 ₽
74 830 ₽ за м²
ID объявления 12301449
Поделиться
Добавить в избранное
№342537 Продается 1/2 жилого дома в Новом Петергофе. В доме четыре комнаты. Дом подключен к магистральному газоснабжению и централизованной системе водоснабжения. Новое газовое оборудование (газовый котел и газовая колонка). Земельный участок разработан и огорожен. Во дворе расположен просторный хозяйственный блок с дополнительной гостевой комнатой, что обеспечивает комфортное проживание и дополнительные возможности для использования пространства.
Объект расположен в районе с развитой инфраструктурой, что делает его привлекательным для потенциальных покупателей. До железнодорожной станции Новый Петергоф можно дойти пешком всего за 15 минут. Добраться до центра города можно на Ласточке за 40 минут.
Прямая продажа. Звоните! Задавайте вопросы и записывайтесь на просмотр!
Дата обновления: 12 декабря 2025