Продажа дома
Ленинградская область, Приветнинское пос., Приветнинское пос.
- 230 м²
- Площадь
- 2
- Этажность
- 31 сот
- Площадь участка
32 000 000 ₽
139 131 ₽ за м²
ID объявления 12472435
Поделиться
Добавить в избранное
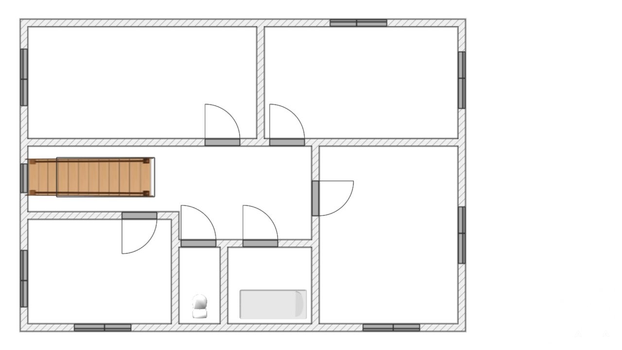
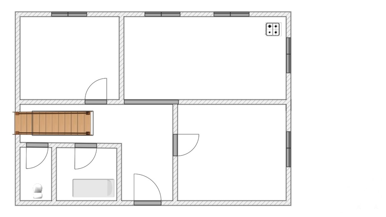
№342568 (168) В тихом уединенном месте в КП Лесной Форт рядом с пос. Приветнинское Выборгского р-она Ленинградской области предлагается новый зимний жилой дом площадью 230 кв.м. на земельном участке в 30
соток. Дом 2025 г.п., при строительстве которого использовались инновационные технологии, в результате чего получился высокотехнологичный и энергоэффективный дом. На 1 этаже дома расположена кухня - гостиная, 2 спальни, раздельный с/у. На 2 этаже 4 изолированные спальни, раздельный с/у. Дом из газобетона, дорогие отделочные материалы. Высота потолка 3 м. Фундамент - монолитная плита. Стены - пеногазобетон. Крыша — фальцевая кровля. Электричество 10 кВт, вода — скважина, канализация — септик, отопление электрический котел (теплый пол). Интернет — оптоволокно и исключительная возможность жить на природе и работать удаленно. На участке построен новый ангар, на участке организован свой собственный пруд. Подъезд - грунтовая хорошая дорога. Изумительное по красоте место! Хвойный лес вокруг Вашего дома. С одной стороны хорошо развитая инфраструктура и транспортная доступность: 15 мин до школы, д/сада и больницы, 30 мин до электрички, сетевые магазины и аптеки — 7 мин на автомобиле, магазины с продуктами первой необходимости — 5 мин пешком, рестораны, кафе, спортивный комплекс с бассейном — 10 минут на авто, 30 минут на автомобиле от КАД. С другой стороны непередаваемая красота и свежесть хвойного леса, грибы, ягоды, экотропа для любителей активного отдыха. Финский залив — 4 км. Администрация КП отвечает за все жилищно — коммунальные вопросы (дороги, охрана, вывоз мусора). Чистый воздух, тишина, уединение и демократичная стоимость — это фантастическое сочетание. Превосходный вариант для постоянного места проживания либо для загородного отдыха. Участок и дом в собственности. Чистая прозрачная сделка.
Дата обновления: 10 февраля 2026