Продажа 2х-комнатной квартиры
Ленинградская область, Никольский, Лисицыной ул., д. 37
- 67 м²
- Площадь
- 37.4 м²
- Жилая площадь
- 12 м²
- Площадь кухни
- 3/5
- Этаж
1 700 000 ₽
25 336 ₽ за м²
ID объявления 12163461
Поделиться
Добавить в избранное
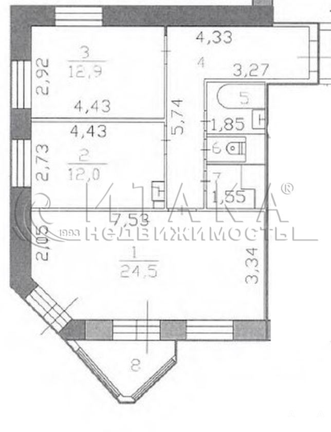
1-92323 Продается просторная 67, 1 кв.м. , светлая ДВУХКОМНАТНАЯ квартира с балконом на третьем этаже пятиэтажного дома, стоящего на берегу живописной реки Свирь в пос.
Никольский Подпорожского района Ленинградской области, в 300 км от Питера.
Комнаты изолированные 24, 5 кв.м. - с балконом, французским балконом и большим окном, и 12, 9 кв.м. - с двумя окнами.
кухня 12 кв.м., раздельный санузел - ванная 4 кв.м. и туалет 2, 5 кв.м.
Большая кладовка, в которой можно оборудовать гардеробную !!!
просторная прихожая 17 кв.м.
В окнах стеклопакеты, входная дверь железная.
На фото видны следы протечки. Сейчас причины устранены, плесени и запаха нет.
В 200 метрах от дома красивейшая река Свирь, родник с чистой водой, рядом сосновый парк, песчаный пляж, лес.
Рядом с домом автобусная остановка, амбулатория, клуб с отличной библиотекой, обустраивается набережная реки.
В поселке есть вся необходимая инфраструктура: школа, детский сад, амбулатория, аптеки, почта, отделение Сбербанка, продовольственные и промышленные магазины, парикмахерские, клуб.
До районного центра 5-7 минут на машине, ходят рейсовые автобусы, такси. Ж/д станция Свирь в 5 мин. автотранспортом.
До Питера можно добраться поездом, электричкой, Ласточкой или маршрутным такси (3, 5 часа).
Поселок расположен на полуострове, огибаемом рекой Свирь, в окружении соснового леса, очень чистый, компактный, уютный.
Близость реки и леса дает возможность отдыха на любой вкус : рыбалка, охота, прогулки в лесу, ягоды-грибы.
По всем вопросам звоните. Просмотр по предварительной договоренности.
Дата обновления: 24 октября 2025