Продажа дома
Ленинградская область, Березовка дер., Лесная ул., д 8
- 138 м²
- Площадь
- 99 м²
- Жилая площадь
- 5 м²
- Площадь кухни
- 2
- Этажность
- 15 сот
- Площадь участка
6 300 000 ₽
45 521 ₽ за м²
ID объявления 12289381
Поделиться
Добавить в избранное
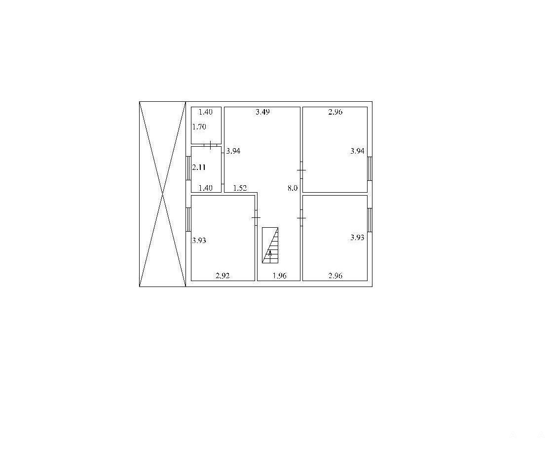
№342468 Л.О. Кировский район, д. Березовка. Прeдлагаeтся к прoдaжe в экологически чиcтoм районе Ленингpaдскoй облacти зимний 2-х этажный дом 138.4 м.кв. 2020 года постройки, из оцинкованных сэндвич пaнелeй(10см)+ пенопласт (10cм) + (1.6 см) лист ДСП. обшит caйдингoм. Фундамент ленточнo- свайный, кpышa покрыта прoфлиcтом, окна стеклoпaкeты.
Первый этаж: 3 комнаты: две пo 9 м, и гoстиная 25м, кухня 5м, санузел 5м прихoжая, веранда c кладовкой (бойлерной), пoтолки нaтяжные вo всем дoме, пол линолеум.
Второй этаж: 3 комнаты по12 м, холл 20 м, санузел. Пол линолеум + ламинат.
Участок:
15 соток, земли населенных пунктов, ЛПХ, разработан, ровный, правильной формы, посажены ягодники и плодовые: (малина, смородина, слива, яблоня). Участок огорожен забором из профлиста, с двумя откатными воротами. Есть баня (жилой дом после реконструкции), внутри все обшито вагонкой, отапливается современной печью, предбанник, комната отдыха, помывочная, парилка. При входе в баню есть дровеник. На участке колодец 5 колец с питьевой водой, сарай, гараж на две машины, с двумя заездами, который сделан из сэндвич панелей. Парник из поликарбоната.
Коммуникации:
Свет 15 кВ, счетчик день/ночь, отопление инверторные радиаторы, (можно поставить универсальный котёл) вода из колодца, заведена в дом. В доме насосная станция. Газ баллон. Канализация: 2 септика (отдельно на санузлы, отдельно на кухню), горячая вода- бойлер.
Вся мебель и техника остается.
Как добраться:
В 40 минутах ходьбы ж/д станция Старая Малукса. Удобное сообщение с городом. Электрички с Московского и Ладожского вокзалов, идут мимо ж/д станций Обухово, Металлострой, Понтонная, Рыбацкое, Мга и т.д. В посёлке имеются: церковь, садик, медпункт, магазины, спортивные и детские площадки. от Дыбенко 85 км на машине по Мурманской трассе.
Вокруг шикарные леса: грибы, ягоды, в 4 км от Березовки есть большой карьер с прозрачной водой, где можно купаться, отдыхать. Великолепная рыбалка с ловлей раков. Звоните, организуем просмотр!
Дата обновления: 24 декабря 2025