Продажа 2х-комнатной квартиры
Ленинградская область, Дубровка, Томилина ул.
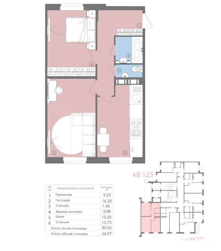
- 60 м²
- Площадь
- 30.06 м²
- Жилая площадь
- 13.20 м²
- Площадь кухни
- 5/5
- Этаж
6 736 468 ₽
112 181 ₽ за м²
ID объявления 6256948
Поделиться
Добавить в избранное
На живописной территории поселка городского типа Дубровка расположен Жилой комплекс «Невская История».
Проектом предусмотрено строительство 2-х корпусов и благоустройство прилегающей территории. При строительстве используется современная технология монолит-газобетон с применением утеплителя и покрытием фасадной штукатуркой.
В проекте предусмотрены 1, 2, 3-х комнатные квартиры с удобной планировкой. Застекленный балкон, гардеробные, большая площадь кухни и ванной комнаты обеспечат для жильцов комфортное проживание!
Благоустройство территории включает устройство площадок для спорта и отдыха, детских площадок, устройство тротуаров и проездов.
Дата обновления: 3 августа 2023